Press ENTER to search or ESC to close

Details
Features
Accessories
Pairings
Alternatives
Details
Code product
4312051
Edge/Installation Type
Q4 (4 mm Edge)
Finish
Foster brushed
Material
AISI 304 stainless steel
Texture
Foster brushed
Base
80 cm
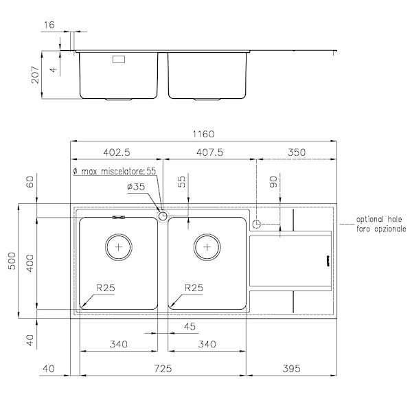
Dimensions
1160 x 500 mm
Standard fittings
Fixing hooks, gasket, drain, overflow and siphon, boxed packing
Mixer holes
1 standard hole
Built-in hole
1140 x 480 mm
Drainer
Yes
Width
116 cm
Bowl dimension
340x400mm
Number of bowls
2 bowls
Waste fitting
3,5" drain
Features
Basket 3,5 waste fittingBasket 3,5" waste fitting
The drain is equipped with a large 3.5" drain, with the practical basket cap that prevents the discharge of solid parts.
Deep bowlsDeep bowls
This bowls reach an important depth, over 20 cm, thanks to the advanced production technology, that can be offer great capiency and practicity in all the washing operations.
High thicknessHigh thickness
1mm thick steel. A significant thickness, which guarantees the maximum sturdiness and durability. 
Perimetral overflowPerimetral overflow
The overflow is always a security on the Foster sinks that prevents the overflow of water in case of oversights. The perimeter drain solution improves aesthetics thanks to its square and essential shape.
Small radiusSmall radius
Bowls with squared shapes with a modern design and an increased capacity, for a minimal aesthetics connected with an extreme practicity.
Alternatives
S4000

Sink S4000

Bowl on the right

4312 051
Share