Pulsa ENTER para buscar o ESC para salir

Detalles
Características
Accesorios
Combinaciones
Desagües opcionales
Alternativas
Detalles
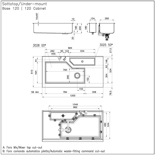
Código producto
3028850
Borde Instalación
Bajo la encimera
Material
Acero inoxidable AISI 304
Texture
Cepillado en la línea
Acabado
Foster cepillado
Base
90 cm
Anchura
80 cm
Dimensiones
800 x 440 mm
Medida de la cubeta
760 x 400 mm
Hueco de encastre
Ver ficha técnica
Dotaciones estándar
Soportes de fijación, desagüe, rebosadero y sifón, Caja de embalaje
Orificios Monomando
Ningún orificio de serie
Escurridor
No
Número de cubetas
1 cubeta
Desagüe
Desagüe 3.5 "
Características
CUBETA PROFUNDACUBETA PROFUNDA
Fregaderos que alcanzan una profundidad importante, más de 20 cm, gracias a la tecnología de producción avanzada, que ofrecen gran capacidad y practicidad en todas las operaciones de lavado.
DESAGÜE 3,5 BASKETDESAGÜE 3,5" BASKET
Desagüe grande de 3,5" equipado con el práctico tapón cestillo que impide el flujo de las partes sólidas en la alcantarilla.
DESAGÜE SPACEDESAGÜE SPACE
Gracias al tapón en acero inoxidable da al desagüe un aspecto minimalista. Space también tiene un espacio limitado y permite un óptimo utilizo del compartimiento inferior del fregadero.
FONDO ESTAMPADOFONDO ESTAMPADO
FREGADEROS DE ESPESORFREGADEROS DE ESPESOR
Acero 1 mm de espesor. Un espesor importante que garantiza máxima robustez para los fregaderos que no conocen las señales del envejecimiento.
REBOSADERO PERIMETRALREBOSADERO PERIMETRAL
El rebosadero es una seguridad siempre presente en los fregaderos Foster que impide el desbordamiento del agua de la cubeta en caso de olvido. La solución del desagüe perimetral mejora la estética gracias a la forma cuadrada y esencial.
SISTEMA DE AHORRO ESPACIOSISTEMA DE AHORRO ESPACIO
Desagüe y sifón están diseñados para dejar el mayor espacio posible en la zona inferior del fregadero, hoy cada vez más útil con los sistemas de reciclaje.

Fregadero Diade

3028 850
Aesthetica
Comparte