Premi INVIO per cercare o ESC per uscire

Lavello S4000
Dettagli
Caratteristiche
Accessori
Abbinamenti
Alternativi
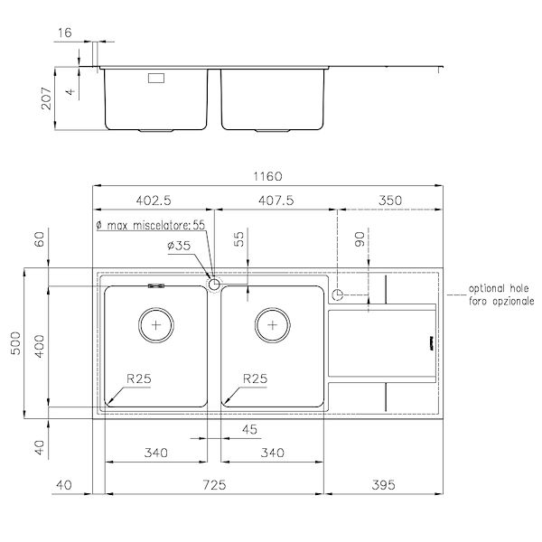
Dettagli
Codice prodotto
4312052
Bordo Installazione
Q4 (Bordo 4 mm)
Finitura
Spazzolato Foster
Materiale
Acciaio inox AISI 304
Texture
Spazzolato
Base
80 cm
Dimensioni
1160 x 500 mm
Dotazioni standard
Ganci di fissaggio, guarnizione, piletta, troppo-pieno e sifone, Imballo in scatola
Fori Mixer
1 foro di serie
Foro incasso
1140 x 480 mm
Gocciolatoio
Si
Larghezza
116 cm
Misura vasca
340x400mm
Numero vasche
2 vasche
Piletta
Piletta 3,5"
Caratteristiche
LAVELLI DI SPESSORELAVELLI DI SPESSORE
Acciaio spesso 1 mm. Uno spessore importante che garantisce la massima robustezza per lavelli che non conoscono i segni del tempo.
PILETTA 3,5 BASKETPILETTA 3,5" BASKET
Lo scarico è dotato di piletta grande 3,5”, con il pratico tappo a cestello che impedisce il defluire nello scarico di parti solide.
TROPPO PIENO PERIMETRALETROPPO PIENO PERIMETRALE
Il troppo/pieno è una sicurezza sempre presente sui lavelli Foster che impedisce il traboccare dell’acqua dalla vasca in caso di dimenticanze. La soluzione a scarico perimetrale migliora l’estetica grazie alla forma squadrata ed essenziale.
VASCA A RAGGIO STRETTOVASCA A RAGGIO STRETTO
Vasche con forme squadrate dal design moderno e con aumentata capienza. Per un'estetica minimal coniugata con la massima praticità.
VASCA PROFONDAVASCA PROFONDA
Vasche che raggiungono una profondità importante, oltre i 20 cm, grazie alla evoluta tecnologia produttiva, che offrono grande capienza e praticità in tutte le operazioni di lavaggio.
S4000

Lavello S4000

Vasca a sinistra

4312 052
Condividi