Premi INVIO per cercare o ESC per uscire

Dettagli
Caratteristiche
Accessori
Abbinamenti
Pilette opzionali
Alternativi
Dettagli
Codice prodotto
3028850
Bordo Installazione
Sottotop
Materiale
Acciaio inox AISI 304
Texture
Spazzolatura in linea
Finitura
Spazzolato Foster
Base
90 cm
Larghezza
80 cm
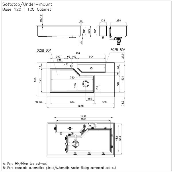
Dimensioni
800 x 440 mm
Misura vasca
760 x 400 mm
Foro incasso
Vedi scheda tecnica
Dotazioni standard
Ganci di fissaggio, piletta, troppo-pieno e sifone, Imballo in scatola
Fori Mixer
Nessun foro di serie
Gocciolatoio
No
Numero vasche
1 vasca
Piletta
Piletta 3,5"
Caratteristiche
FONDO STAMPATOFONDO STAMPATO
Il fondo stampato garantisce il perfetto deflusso dell'acqua e facilita le operazioni di pulizia grazie al gradino perimetrale con le pareti inclinate.
LAVELLI DI SPESSORELAVELLI DI SPESSORE
Acciaio spesso 1 mm. Uno spessore importante che garantisce la massima robustezza per lavelli che non conoscono i segni del tempo.
PILETTA 3,5 BASKETPILETTA 3,5" BASKET
Lo scarico è dotato di piletta grande 3,5”, con il pratico tappo a cestello che impedisce il defluire nello scarico di parti solide.
PILETTA SPACEPILETTA SPACE
Grazie al tappo in acciaio inox dona allo scarico un aspetto minimal. Space ha inoltre un ingombro limitato e permette l’ottimale utilizzo del vano sottolavello.
SISTEMA SALVASPAZIOSISTEMA SALVASPAZIO
Piletta e sifone sono studiati per lasciare il maggior spazio possibile nella zona sotto-lavello, sempre più utile oggi con i sistemi di raccolta differenziata.
TROPPO PIENO PERIMETRALETROPPO PIENO PERIMETRALE
Il troppo/pieno è una sicurezza sempre presente sui lavelli Foster che impedisce il traboccare dell’acqua dalla vasca in caso di dimenticanze. La soluzione a scarico perimetrale migliora l’estetica grazie alla forma squadrata ed essenziale.
VASCA PROFONDAVASCA PROFONDA
Vasche che raggiungono una profondità importante, oltre i 20 cm, grazie alla evoluta tecnologia produttiva, che offrono grande capienza e praticità in tutte le operazioni di lavaggio.
Diade

Lavello Diade

3028 850
Aesthetica
Condividi